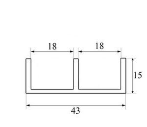
Профиль-ручка модели RP01 применима в системах шкафов-купе «РИАЛ» и «УНИВЕРСАЛ». Закрепляется на кромку наполнителя двери из ДСП/ЛДСП. Играет одновременно декоративную и функциональную роль несущей рамки двери.
Особенности:
- Практичная конструкция. Обеспечен удобный захват. Можно применять в конструкциях различных моделей.
- Простой монтаж, при котором не нужно делать предварительную разметку. Для этого разметочная риска нанесена на заднюю сторону профиля.
- Для закрепления применяются шурупы, которые не видны во время эксплуатации дверей.
- Отсутствуют технические отверстия с торцов профиль-ручки.
- Плотное прилегание. Нет зазора между ДСП и профилем после установки.

